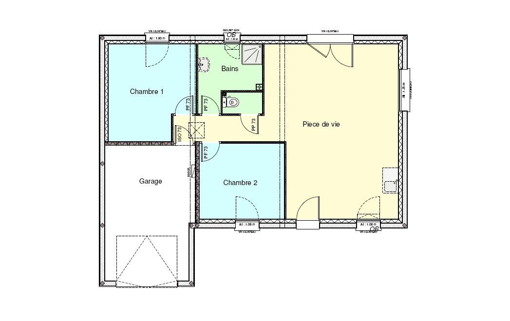
Maisons de prix inférieur à 120 000 € Maisons moins de 120000€ » LENA 2 chambres, 1 salle de bain, 1 toilette, 1 pièce de vie, 1 garage